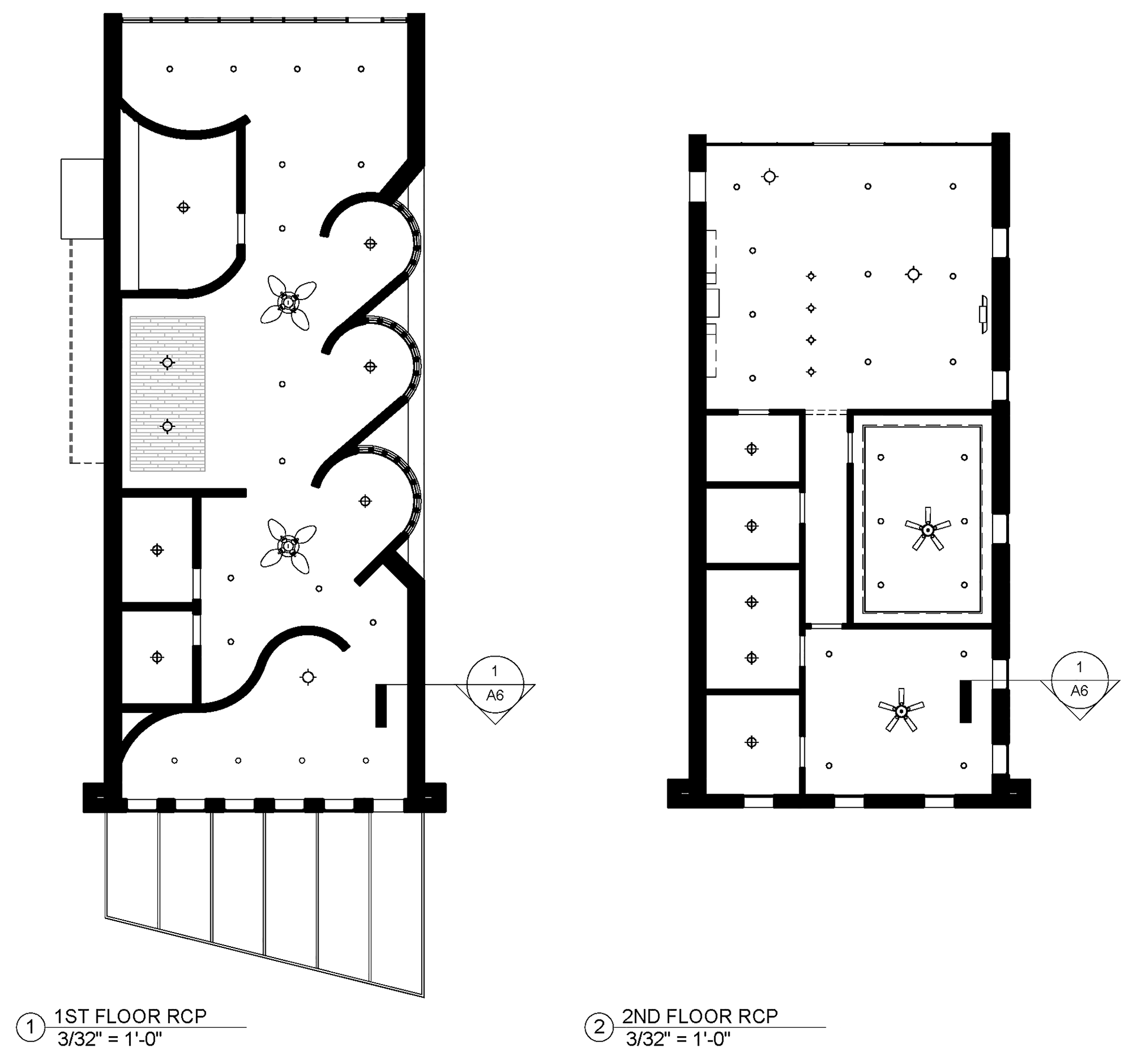
Designed in sophomore year of undergraduate school, this project was part of our introduction to Revit class. We were given only the building footprint and that it would be located on a boardwalk. We could choose any concept for the building itself and we were challenged to design both the exterior and interior, but the focus was on creating the technical drawings from Revit. The Boardwalk Tattoo Shop was inspired by the waves of the ocean this space provides a relaxing and chill environment for people to come get a tattoo. Little round nooks will allow clients to look out at the ocean while being tattooed. Being on a boardwalk, the shop is accessible from the street and from the back closer from beach side. The owner of this space will have his own residence on the second floor with a rooftop patio to overlook the ocean.